ChatsApp

OFICINA ZONA WTC

en Pocitos

  • Ref: 397
  • Habitaciones1 Ambiente
  • Baños1
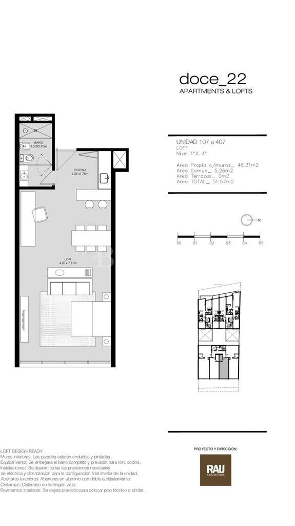
  • Superficie51,00 m²
U$S 890
Alquiler

Descripción

Ubicadas en una de las zonas más estratégicas de Pocitos, a pocos metros de Montevideo Shopping y el World Trade Center, estas oficinas ofrecen un entorno de trabajo moderno, versátil y bien conectado. Con un diseño innovador, amplios espacios y excelente iluminación, son ideales para empresas, profesionales y emprendedores que buscan un workspace flexible y de alta calidad.

Características principales:
- Espacios amplios y luminosos, con grandes ventanales de doble vidrio y vista despejada hacia WTC.
- Sistema de seguridad integrado, con cámaras y control de acceso.
- Parking de bicicletas y 28 plazas de estacionamiento.
- Previsión para piso técnico, permitiendo la configuración personalizada del espacio.
- Mesada con pileta, mueble bajo mesada y aéreo incluidos.
- Baño completo.
- Espacios comunes y amenities

Doce 22 ofrece un menú de experiencias para fomentar el networking y el bienestar de quienes trabajan en el complejo:
- Open Kitchen: Espacio cerrado con parrillero, anafe, horno y una gran mesa de trabajo.
- Lounge y Playroom: Áreas de descanso y entretenimiento.
- Fitness & Gimnasio: Espacio equipado para ejercicio y bienestar.
- Solarium y Terraza: Ideal para disfrutar del aire libre.
- Laundry y Lavadero: Para mayor comodidad en la rutina diaria.
- Lobby & Recepción: Espacio de acceso elegante y funcional.

Diseño y terminaciones:
- Muros de mampostería con terminación enduída y pintada.
- Pavimentos interiores en vinílico símil madera y porcelanato en baños.
- Cielorraso de hormigón visto en living y dormitorios, y de yeso en baños y cocina.
- Aberturas de aluminio con doble acristalamiento en fachada principal.
- Placares en madera laminada con puertas batientes.
- Muebles de cocina modulados con mesadas de granito o mármol.
- Ascensores con puertas automáticas para mayor eficiencia.

Ubicación estratégica:
Doce 22 se encuentra en una de las mejores zonas de Pocitos, con fácil acceso a servicios, transporte público y una oferta comercial excepcional. Su cercanía a Montevideo Shopping y WTC lo convierte en el lugar ideal para instalar tu oficina en un entorno dinámico y moderno.

Contáctanos para conocer más sobre esta oficina en alquiler.
Impulsamos a empresas a encontrar el lugar que sueñan!










Características de la propiedad

  • Habitaciones1 Ambiente
  • BañosBaños: 1
  • SuperficieSuperficie: 51,00 m²
  • GarageCochera: 0
  • ParrilleroParrillero
  • SeguridadSeguridad: Cámaras y control de acceso
  • AscensorAscensor

Contactate con nosotros

captcha

Nosotros

Somos una Inmobiliaria Boutique, con un perfil emprendedor e innovador. Profesionales con profundo conocimiento del mercado de Bienes Raíces.